OFFICE  KGDVS

OFFICE 417

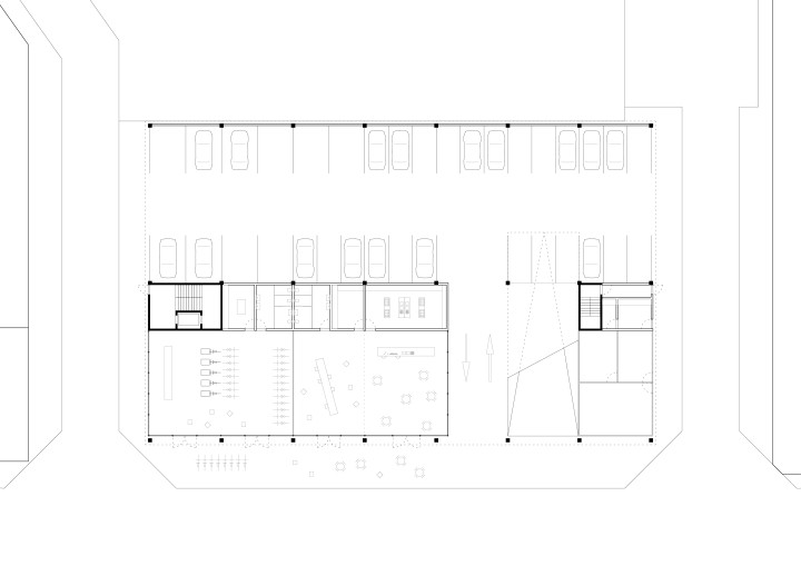
MOBILITY HOUSE – Malmö

This competition called for a new flexible and sustainable multi-storey car park that combines several public functions, and that can easily be adapted to new types of mobility. The building meets high sustainability standards. The proposal minimises the building’s footprint, reducing material use while creating a public square in front with shared amenities, including a café, a bike station, and a parcel pick-up point. The building is a simple box with a skin of recycled bricks, arranged as a pattern of various tints to make the facade an integrated public art, making the building an urban figure with a unique character.

Year

2024 –

Location

Malmö, SE

Type

Public, Infrastructure

Status

Ongoing

Surface

12 200 m2

Client

Parkering Malmö

Collaborator(s)

Krupinski/Krupinska, Studio Akane Moriyama, Samkonsult AB, Qreo

Design team

Kersten Geers, David Van Severen, Jacopo Lugli, Elisa Guarnieri, Ivana Cobejova, Phoebe Yao

Awards

Competition, 1st prize