OFFICE  KGDVS

OFFICE 356

ART CENTRE (PHI CONTEMPORARY) – Montreal

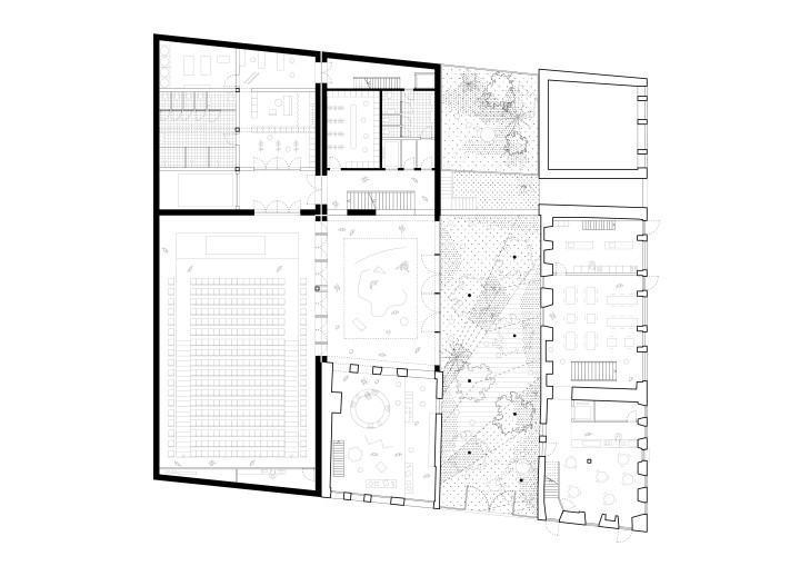
PHI Contemporary is a new institution of contemporary art and culture consolidating all the activities of the Phi Foundation. Located in the historic district of Montreal, its corner site encompasses four existing eighteenth-century buildings and an adjacent vacant lot. The compact volume of the main building – the new extension – integrates one of the historic buildings. The row of the three remaining buildings houses a cafeteria and artists’ studios. In between is a green public courtyard that forms the threshold between the building and the city, and a hinge between the restored historical ensemble and the new construction. The sequence of spaces in the extension, which is conceived as a warehouse typology, allows endless scenarios for the ever-changing world of contemporary art production. Together with the existing brick-and-stone building, it makes a dense set of five interlocking volumes combining exhibition spaces, new media galleries, research and studio spaces. As the main building is detached, it allows for generous natural light from all sides. The tripartite facade division is defined by the existing building, including the mesh frieze that wraps around its roof. The project is a careful negotiation between old and new, and between diverse figures that create a unified architectural whole.

Year

2022

Location

Montreal, CA

Type

Culture, Education, Adaptive reuse, ,

Status

Unbuilt

Surface

5 800 m2

Client

PHI

Collaborator(s)

Richard Venlet, Affleck de la Riva, RJC, Bollinger+Grohmann, Pageau Morel, Marchand Houle et Associés, Arup, Les Éclaireurs, Robert Desjardins, Annie Ypperciel

Design team

Kersten Geers, David Van Severen, Matteo Silverii, Valentina Previtera, Luzi Speth

Images

Filippo Bolognese