OFFICE  KGDVS

OFFICE 351

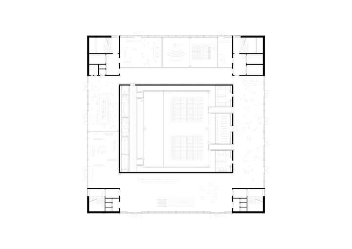
PHILHARMONIC HALL – Prague

The Vltava Philharmonic hall is a perfect 72m cube that stands prominently at the riverfront, forming with the front square and the surrounding parc a metropolitan ensemble. Through its sheer size, it relates directly to the Vltava river and the city around it. Through its minimal footprint, it leaves room for a real park with big trees and a grand public square. The proposal is a concise Music Box that condenses public, music and cultural production in a radically new figure. The vertical stacking of the program is celebrated with big urban windows unfolding the different foyers to the city while including the city proper into the inner musical life. The rhythm of the circular windows allude to mechanic playing cards and notes, ‘playing’ music to the surrounding city and its citizens. Inside this new figure, four main levels are clearly readable. Each main level hosts a specific music hall and its own foyer. Each main level looks at the city. A simple but very performative circulation system climbs from datum to datum, level to level. On the ground, directly accessible from the main entrance Lobby one finds the Black Box and its foyer as it is the most street-like event space. On the second main level, easily reachable through the vertical promenade in the front of house, are revealed the Chamber music Hall and the main rehearsal rooms. On the third main level, in heart of the building, the Main Philharmonic Hall and its generous foyer spaces overlook the city. As on the other floors, the Philharmonic Hall is centrally placed in the square plan. The space around becomes a series of extremely generous foyers with their respective bars, restaurants and amenities. The windows are always present, as big ambiguous openings to the city or as large perforations, making both monumental public spaces and intimate corners. Crowning the figure, the Creative Hub, most public program, inhabits the rooftop and shares un-exclusively the incredible views to the entire city of Prague. The Vltava Philharmonic Hall is a Big House for the people of Prague and its many visitors.

Year

2022

Location

Prague, CZ

Type

Culture, Public,

Status

Unbuilt

Surface

50 000 m2

Collaborator(s)

Christ & Gantenbein, Inside/Outside, Applied Acoustics, Schnetzer Puskas

Design team

Kersten Geers, David Van Severen, Henri de Chassey, Paul Schönthaler, Alexander Wegener

Images

Filippo Bolognese