OFFICE  KGDVS

OFFICE 324

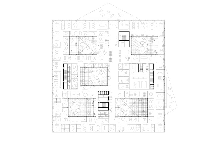
MEDIA HOUSE (VRT) – Brussels

The new headquarters for VRT (Flemish Radio and Television) in the Mediapark is a compact and horizontal building with the ambition of a contemporary media factory. The project consists of two stacked volumes: an octagonal base and the field, a continuous interior on three floors pierced by patios. The base is a multi-faceted volume a tutto tondo, that addresses the city and the forest, shaping four outdoor spaces. It contains the main foyer and the public program linked to it, the television studios, logistic spaces, archives, and parking. Atop it, Field VRT is a horizontal spatial continuum of interaction where dynamic workplaces and media production spaces are integrated: a media house of many houses, where radio and TV brands create together in an endlessly adaptable space. The new VRT house is integrated into the natural environment and has a limited ecological footprint. Its compactness safeguards as much park area and existing trees as possible and the building is completely free of fossil fuel-derived sources of energy. The competition was won in June 2021 and the building is expected to be delivered at the end of 2025.

Year

2020 –

Location

Brussels, BE

Type

Culture, Office, Public, Media, ,

Status

Ongoing

Surface

65 000 m2

Client

VRT (Flemish radio and television organisation)

Collaborator(s)

Jaspers-Eyers Architects, Bureau Bas Smets, Willemen Construct, Jan De Nul Group, EEG, Tractebel, CES, Ideal Acoustics

Design team

Kersten Geers, David Van Severen, Alexander Smedts, Virginia Santilli, Julius Seniunas, Charles André, Pieter Roziers, Seppe Claes, Oriane Jan, Filippo Arenosto, Gabi Meszaros, Sacha Ketelbuters, Clemens Urban

Art integration

Matt Mullican, Sophie Nys

Award

Competition, 1st prize

Images

Filippo Bolognese