OFFICE  KGDVS

OFFICE 303

HOUSING COMPLEX – Strasbourg

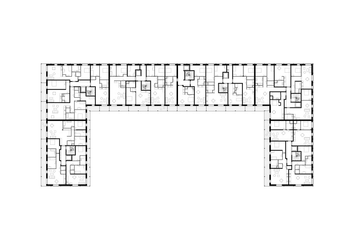
The former industrial site of the coal processing plant Starlette, near the Port of Strasbourg on the Rhine river, is part of a larger urban transformation. Positioned along the Vauban canal in the midst of this new development, the low-carbon housing complex is a single U-shaped building comprising a total of 148 apartments. The volume is gradually stepping up from the lowest side facing the canal. Each stepping level is an accessible common roof garden with greenhouses. The 45-degree cuts in the corners make multi-directional facade and enable uninterrupted views to the canal and its bridges. The structural grid superimposed on the red brick facade is reminiscent of the site’s industrial past, but also references Alsatian vernacular architecture and timber-framed houses. The apartments are organised around multiple cores, minimising residual corridor space. In addition to the apartments, this housing complex has various common spaces, including a kindergarten, commercial spaces, a bicycle storage and workshop. Linear balconies and generous common areas perform as an extension of the private apartments. On the ground floor, the building is raised on brick pilotis, integrating the block into its surroundings as the densely planted terrain slopes towards the canal.

Year

2019 –

Location

Strasbourg, FR

Type

Residential

Status

Ongoing

Surface

11 500 m2

Client

Eiffage Immobilier

Collaborator(s)

Loïc Picquet Atelier Architecte, HN Ingenierie, Eiffage, Egis, Zefco, acte2paysage, l’Effet Urbain, Urban Eco, Recipro-cité

Design team

Kersten Geers, David Van Severen, Justine Rossillion, Chiara Malerba, Nicholas Jacobs, Côme Rolin, Olivier Thomas, Paul Schönthaler, Luzi Speth

Award

Competition, 1st prize