OFFICE  KGDVS

OFFICE 302

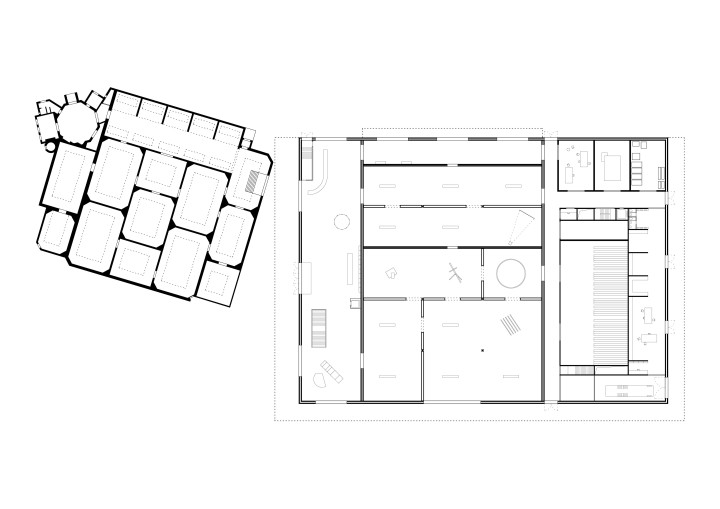
EXHIBITION HALL – Bruges

Set next to the Groeninge Museum, the new exhibition hall is part of a dense constellation of detached buildings in a park on the grounds of a former abbey in the historic city centre of Bruges. The one-storey building with a rectangular footprint is laid out on the available irregular site. The raised slope on the edge of its sawtooth roof almost touches the Groeninge Museum and forms a canopy that marks the entrance to the new exhibition hall. The roof and pediments are clad in aluminium and stand on a brick base. Inside, the plan is defined by three parallel bands. The exhibition spaces are framed on one side by a generous entrance and on the other by an archive and storage area. The exhibition spaces themselves are arranged as two large volumes with controlled natural light and a specific visual relationship to the park and the forecourt.

Year

2019

Location

Bruges, BE

Type

Culture, Public

Status

Unbuilt

Surface

15 000 m2

Client

City of Bruges

Collaborator(s)

Christ & Gantenbein, BASIL architecture, Eiffage Development, Antwerpse Bouwwerken, Landinzicht, Cobe, CES, Bureau Bouwtechniek, EVA International, DS Consulting, FPC Risk, Royal Haskoning

Design team

Kersten Geers, David Van Severen, Stefaan Jamaer, Olivier Thomas, Mattia Chinellato, Alice Tripet

Images

Filippo Bolognese