OFFICE  KGDVS

OFFICE 295

OFFICE BUILDING (SWCS) – Charleroi

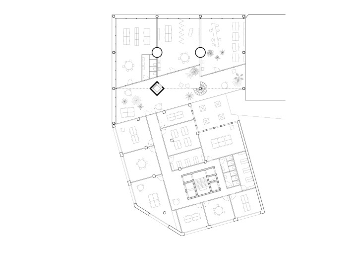
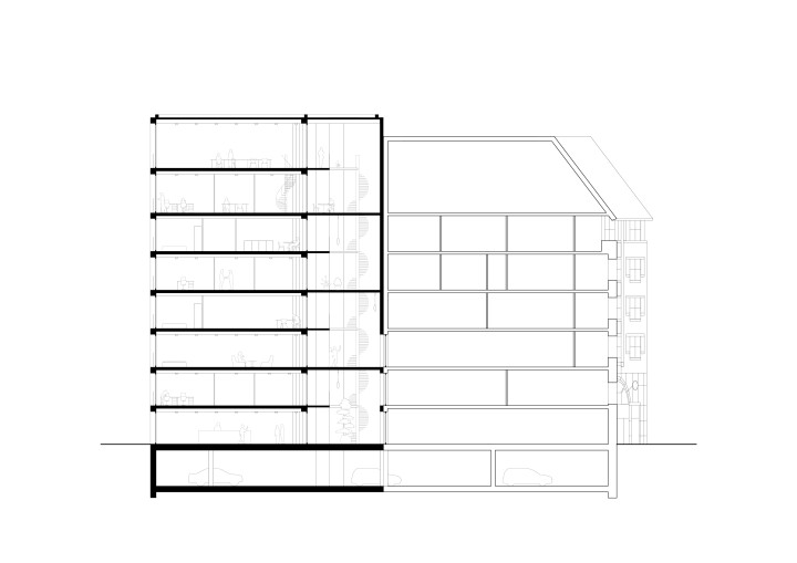
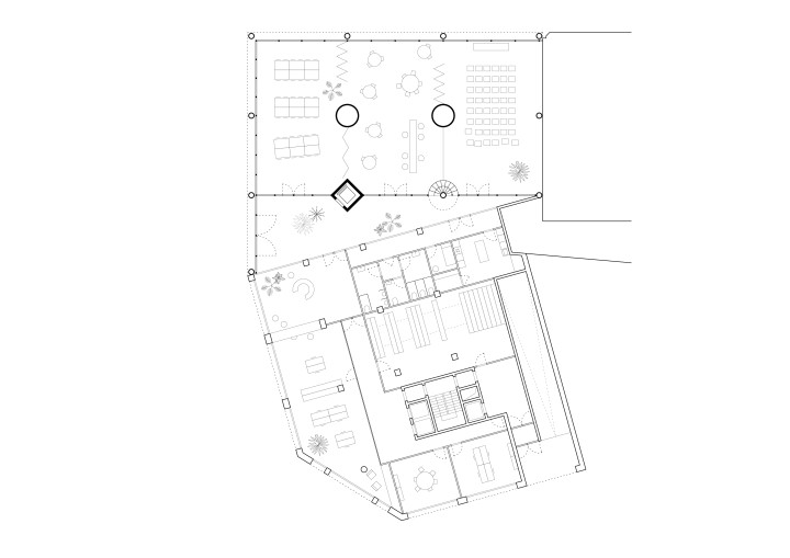
The Walloon Social Credit Company purchased a vacant lot on a prominent corner site next to its headquarters in Charleroi and launched a competition for an extension that combined office space with dwellings. Negotiating between an efficient orthogonal grid and the irregular perimeter of the site, the project done in collaboration with AgwA, is effectively divided in two parts: the rectangular portion of the plan is an enclosed interior, while the remaining triangular hinge adjacent to the existing building makes double-height winter gardens. The rectangular free plan allows various configurations of offices and apartments, arranged over eight floors. The columns are not only structural but also serve as technical shafts and vertical circulation, leaving the plan without any extraneous elements.

Year

2019

Location

Charleroi, BE

Type

Office

Status

Unbuilt

Surface

3 300 m2

Client

Société wallonne du crédit social (SWCS)

Collaborator(s)

AgwA, Denis Dujardin, Bureau De Fonseca, DR(EA)²M, Bollinger+Grohmann, MK Engineering

Design team

Kersten Geers, David Van Severen, Joschka Kannen, Nicolas Berrebbi