OFFICE  KGDVS

OFFICE 280

BREWERY – Brussels

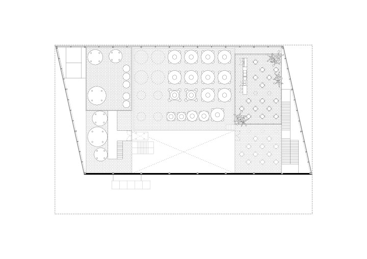
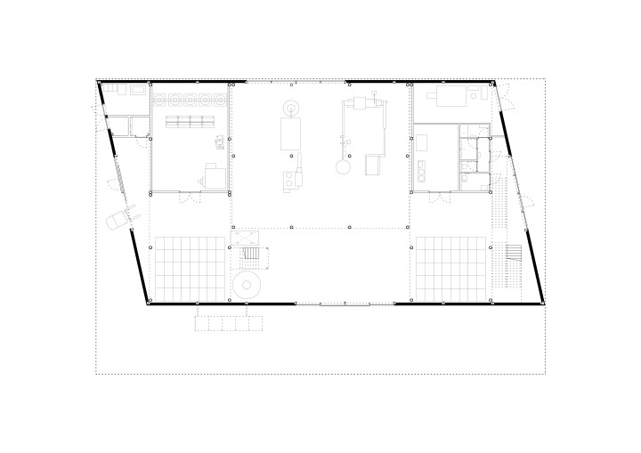
The new brewery for Brussels Beer Project (BBP) is located along the Brussels canal in Port Sud, a former industrial zone undergoing rapid redevelopment. The building – a compact and efficient industrial container – houses the complete beer production process and is also open to the public. While complying with a range of technological and sanitary standards, its design resolves logistical challenges and the high pollution levels of the brownfield site, enabling a sustainable production process. A skewed rectangular box has a concrete base and an inclined roof that reveals its underside behind the glazed upper facade. The roof performs as a giant billboard, with painted stripes in the characteristic colours of BBP beer labels. The section of varying height accommodates a highly compact multi-level arrangement of the brewing machinery and vats in a series of table-like platforms connected with stairs. Akin to large pieces of furniture, these elements populate the space and are visible through the large semi-reflective greenhouse facade. The open plan enables a flexible organisation that can be altered as the technological requirements evolve. The roof overhang in the back shelters a beer garden, a popular stop alongside a cycle route.

Year

2018 – 2022

Location

Brussels, BE

Type

Industrial, ,

Status

Built

Surface

1 600 m2

Client

Brussels Beer Project

Collaborator(s)

UTIL Struktuurstudies, Boydens Engineering, Zymo, Jeroen Provoost

Design team

Kersten Geers, David Van Severen, Alexander Smedts, Henri de Chassey, Steven Bosmans, Linea Dyrbye Jensen, Enea Facoetti, Ziou Gao, Hadrien Nicora

Award

Competition, 1st prize
Nominated for the Mies van der Rohe Award 2024

Photographs

Bas Princen