OFFICE  KGDVS

OFFICE 247

ART GALLERY – Antwerp

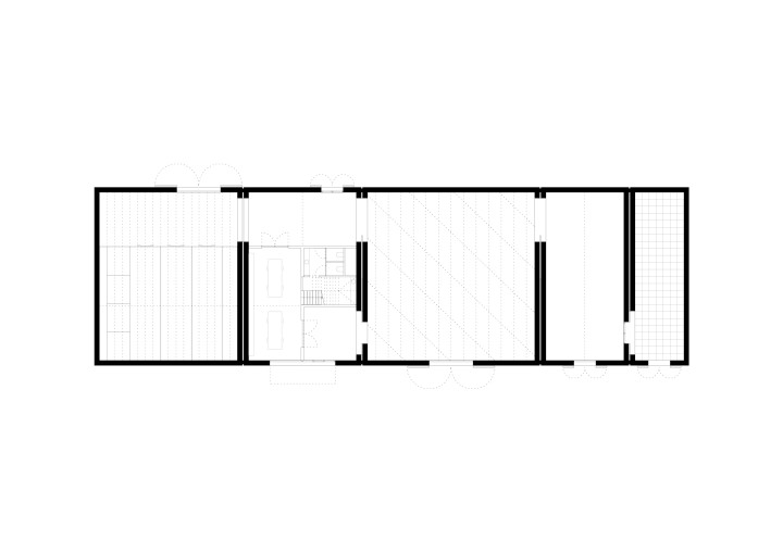
The new Tim Van Laere Gallery of contemporary art in Antwerp is positioned within an ambitious urban redevelopment plan that seeks to improve the relationship of the city with the River Scheldt. The gallery building occupies a strategic position within the new fabric, surrounded by large residential and office buildings. It is a clear and simple proposal that reveals its structure at a glance in the staggered silhouette: a concatenation of rooms, or pure types of buildings – storage space, offices, white cube, chapel, patio – each with a particular size and proportions adapted to different ways of experiencing art. The rooms are constructed as simple in-situ concrete boxes, each made specific by infills of wooden structural elements. Aside from their dimensions, the rooms are differentiated by their roof structure. All the rooms are internally isolated and lit from above, each with a specific skylight system made of laminated timber elements of different shapes, and which give each space unique lighting conditions. As an explicitly urban building in a suburban environment, the gallery expresses a mild defiance towards its surroundings. With its gates directly on the street, it relates to both its immediate context and its content. Art, its central focal point, is made visible and accessible to all.

Year

2017 – 2019

Location

Antwerp, BE

Type

Culture,

Status

Built

Surface

900 m2

Client

Tim Van Laere Gallery

Collaborator(s)

Bureau Bas Smets, hp engineers, ARC

Design team

Kersten Geers, David Van Severen, Jan Lenaerts, Stefaan Jamaer, Henri de Chassey, Inga Karen Traustadottir, Jacopo Lugli

Photographs

Bas Princen