CREMATORIUM – Ostend - OFFICE Kersten Geers David Van Severen

OFFICE  KGDVS

OFFICE 165

CREMATORIUM – Ostend

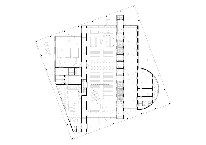
A collaboration with Richard Venlet, the crematorium takes account of the ambiguous nature of its content, as a space combining ceremonial practice and technical performance. The rectangular single-storey volume sits in an elaborately designed landscape in the polders on the outskirts of Ostend. Its sloping roof, supported by a colonnade, allows for a low main entrance while accommodating machinery and an air-cleaning system at the rear: the cremation furnaces are located under the highest point of the building. The plan is organised in lateral strips of varying widths comprising the central ceremonial halls, waiting rooms and technical spaces, with thin bands of auxiliary functions and passageways. A twist in the direction of the roof canopy produces a covered arcade around the building, which includes the semi-circular office area. A double facade of glass and perforated metal panels mediates the relationship between the internal spaces and the surrounding landscape, combining with the roof lighting to instil a tranquil atmosphere. The roof itself appears as a nature morte composition of abstract objects that conceal technical elements such as the roof lights, chimney and gutters but also allude to the building’s inherent symbolism and public status.

Year

2014 – 2021

Location

Ostend, BE

Type

Public,

Status

Built

Surface

1 750 m2

Client

Intercommunale OVCO

Collaborator(s)

Richard Venlet, Bureau Bas Smets, UTIL Struktuurstudies, hp engineers

Design team

Kersten Geers, David Van Severen, Alexander Smedts, Anne van Hout, Shinji Terada, Stefaan Jamaer, Bert Rogiers, Anna Andrich, Alexandra Paritzky, Evelyn Temmel, Tomas Tironi

Award

Competition, 1st prize
Nominated for the Mies van der Rohe Award 2022
Nominated for the Brussels Architecture Prize 2023, category ‘Extra Muros’

Photographs

Bas Princen